|
|||||||||||
ProjektjeinkTársasházak, középületek - irodaházak
2010 Budapest, 3.ker. - irodaépület
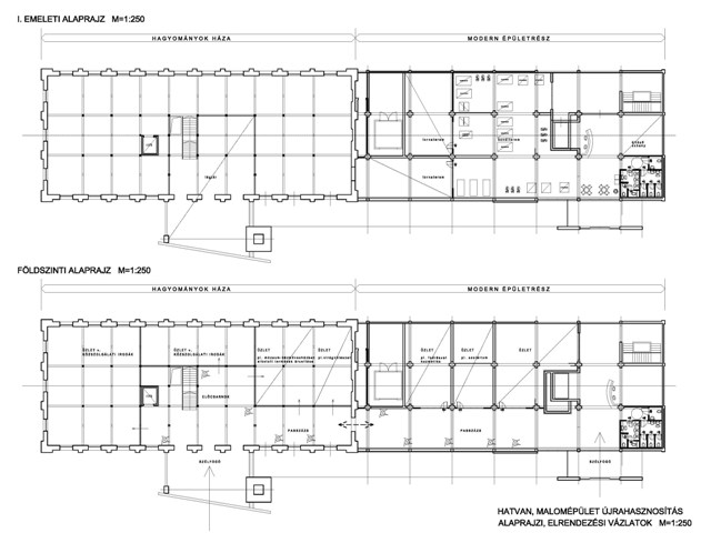
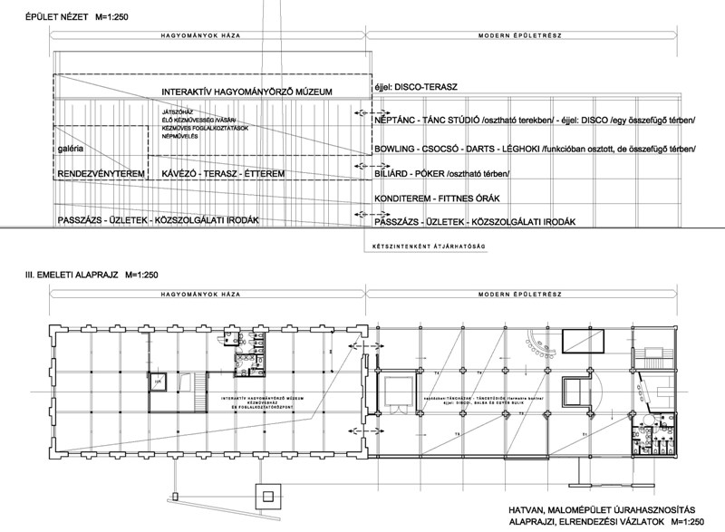
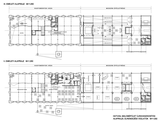
![]() 2010 Tompa - gyógyszertár ![]() 2010 Hatvan - volt malomépület rekonstrukció ![]() 2009 Tompa - élelmiszerbolt ![]() 2007 Gyöngyöspata - szálló, fürdő ![]() 2006 Szentendre - irodaépület ![]() 2004 Tápióbicske - önkormányzat és könyvtár ![]() 2004 Gyöngyös - Mátra szálló átalakítása ![]() 2004 Budapest - Cargo Raktárbázis ![]() 2002 Budapest, 4.ker - társasház ![]() 2001 Tamási - társasház ![]() 2001 Budapest,8.ker. - társasház ![]() |
MunkáinkMunkáink
Irodaházak, társasházak |
||||||||||
|
Az oldalon lévő bármilyen információ vagy fotó csak a honlap írásos beleegyezésével és a forrás feltüntetésével engedélyezett! Webmester: Hati | Copyright © 2010 - www.compart.hu | Minden jog fenntartva! |
|||||||||||