Iroda : 1039 Budapest, Kalászi köz 8/b
Tel.: +36 30 940-6111 | Email: info@compart.hu
Építésziroda - Családi ház tervezés
Építésziroda - Családi ház tervezés
Építésziroda - Családi ház tervezés
Építésziroda - Családi ház tervezés
Építésziroda - Családi ház tervezés
Építésziroda - Családi ház tervezés
Építésziroda - Családi ház tervezés

Projektjeink

Munkáink

Munkáink családi ház tervezés Irodaházak, társasházak
 

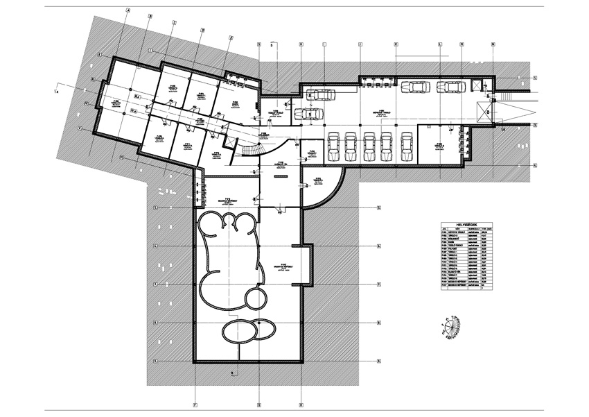
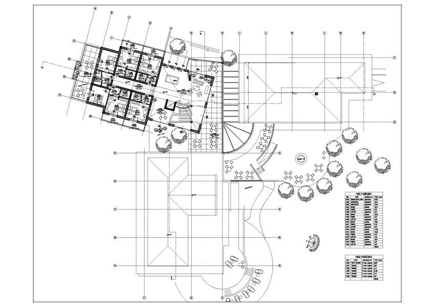
2007 Gyöngyöspata - szálló, fürdő

A képgalériához kattintson a kis képek valamelyikére!
       
Az oldalon lévő bármilyen információ vagy fotó csak a honlap írásos beleegyezésével és a forrás feltüntetésével engedélyezett!
Webmester: Hati | Copyright © 2010 - www.compart.hu | Minden jog fenntartva!